Here first i am sharing with the main wiring diagram. Control circuit for forward and reverse motor checkout video on 4 way switch wiring.
Help Me Hook Up A Forward Stop Reverse Motor Cont Switch On
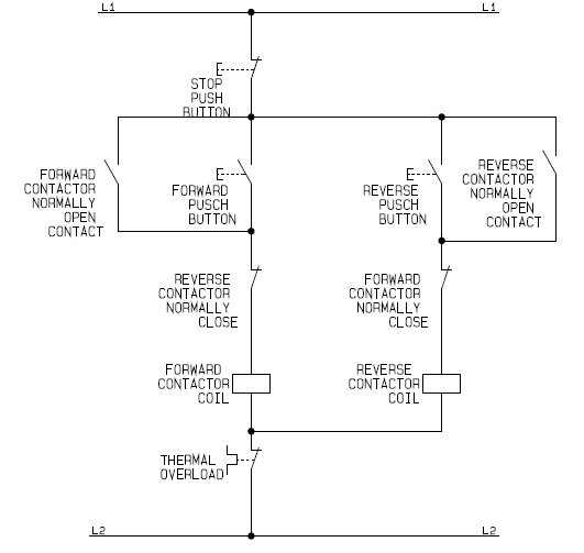
Forward reverse motor wiring diagram. 800 x 600 px source. Variety of single phase motor wiring diagram forward reverse. And 2nd will about the controlling wiring of three phase motor forward reverse starter diagram. Three phase motor connection stardelta y δ reverse forward with regard to single phase forward reverse motor wiring diagram image size 621 x 686 px and to view image details please click the image. Figure 2 forwardreverse motor wiring diagram. It reveals the components of the circuit as simplified forms as well as the power as well as signal links in between the tools.
I have a conveyor from ground to first floor where would i add the forward and reverse and e stop buttons for the first floor on this diagram. A wiring diagram is a simplified conventional pictorial representation of an electrical circuit. Single phase forward reverse motor wiring diagram concerbiz size. For simplicity the plc implementation of the circuit in figure 1 includes all of the elements in the hardwired diagram even though the additional starter contacts normally closed r and f in the hardwired circuit are not required since the push button interlocking accomplishes the same task. In short this the complete guide of forward reverse starter. In the 3 phase motor forward reverse starter wiring diagram.
Concerbiz here are a few of the leading drawings we obtain from various sources we wish these pictures will serve to you and with any luck very appropriate to just what you want about the reversing motor starter wiring diagram is. Wiring diagram of forward and reverse motor using two contactors working principle of one line motor circuit horizontal fvr reversing wounderlodge lxi 120 power swich chang over box wireing diagram. Three phase motor connection reverse and forward power and control wiring diagrams. I shown the 3 pole mccb circuit breaker 2 magnetic contactor normally open normally close push button switch thermal overload relay 3 phase 4 wire system supply 3 phase motor with connection trip indicator light etc. In which one for main wiring of 3 phase motor reverse forward motor control circuit diagram. Here is a picture gallery about single phase forward reverse motor wiring diagram complete with the description of the image please find the image you need.
Reverse forward motor control circuit diagram for three phase motor.

















