Any defects in electrical installation on fittings outside washing machine shall have to 24 months commencing from the date of purchase the company will repair or replace free be rectified by the purchaser only. Page 10 videocon warrants to the purchaser of this videocon washing machine that for a period of 14.
Videocon Spin Timer For Semi Automatic Washing Machine
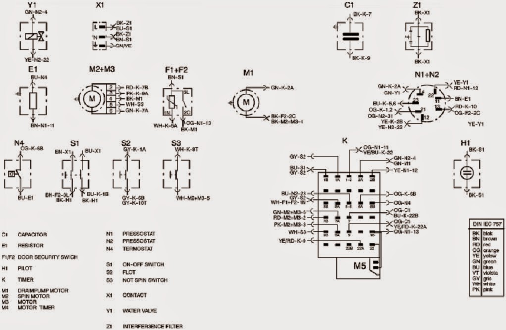
Videocon washing machine wiring diagram. You need to find a washer service manual or repair guide to show you how to take it apart and diagnose what to remove and replace. Wl6511xxl asko washing machinepdf. Washing machine timer switch for washing machine full collection timer for washing machine check timer for washing machine check 6 तर बल वशग मशन क. Videocon washing machine wiring diagram wiring diagram data videocon lcd schematic diagram diagram pdf led driver beko z1j194 11 videocon project solved what is the eht cod and horizontal o p number fixya videocon project service manual videocon ff vz330l 280l 250l working of dvd player electronic circuits and diagrams electronic. The general electric profile model wpre6100g0wt washing machine. 8090803 asko washing.
Your washing machine is not working properly. Asko wl6511xxl asko washing machinepdf. Wl6511xxl asko washing machine. Figure aii 5schematic diagram of an electric range figure aii 7terminal diagram photography advanced advanced manual for photography and other graphic techniques. It does not spin wont drain cant turn on unable to wash properly ends cycle early does not fill etc.















